The Valley Forge Tiny Home breaks the mold of compact living by combining refined modern features with a cozy rustic look. It was designed as a high-end park model cabin by Utopian Villas. This 400 square feet (going up to 480 square feet with an 80 square feet front porch) living area that features a valley roof design inspired by the hilly and valley landscape of valley forge national park is a reinterpretation of the traditional Valley Forge National Park theme. Valley Forge Tiny Home is the perfect place for you to have a weekend holiday, family vacation or recreational retreat because it has the comfort of a big house.

Design and Exterior Features of the Valley Forge Tiny Home
The exterior of the Valley Forge Tiny Home highlights its attractive, simple, modern, harmonious with nature aspect inspired by mountain cabins of the past but improved with the addition of new elements. The unique valley roof covered with long-lasting steel roofing is a great functional building feature and a lovely element of the exterior design at the same time. A couple of shakes and ledgestone wall bump-outs that are in the natural palette have been used thus the home features an outdoor look that is both rugged and elegant. The home looks like a part of the landscape that is trimmed down with the use of a few natural materials.
The home is built atop a patented insulated floor system of an R24 rating prioritizing energy-saving and home comfort. The outside walls are made of 2×4 lumber boards that have been combined with ZIP System sheeting, and the floors, walls, and ceiling have been sprayed closed-cell foam to provide the inhabitants with comfort in all seasons even if the climate is quite severe. Factory-finished siding along with Pella’s windows and doors add to the exterior charm and make the facade really low maintenance. A lovely custom deck can be optionally included in the design and serves as a place to enjoy the outdoors, have a barbecue like those with the built-in grilling station or simply be in the fresh air.

Besides clever and attractive functionalities, this model also features a nice 3-season porch that is perfect for relaxing any time of the day and mood. The triple-wide patio doors allow sunlight to dominate the interior areas resulting in a very bright living environment. Utopian Villas market Valley Forge as a cabin that blends the modern and classic styles, and every element in this cabin is to open up the living space and foster closeness with nature.
Comfort and Functionality of the Valley Forge Tiny Home
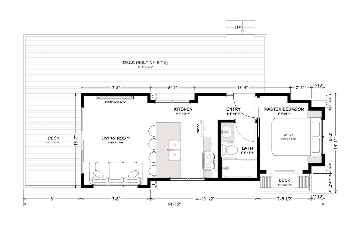
You enter Valley Forge Tiny Home and meet with a bright, open and spacious interior design that doesn’t limit the 400 square feet in any way. Kitchen and living room are next to each other and the vaulted ceilings are the outstanding feature of this space. Exposed cedar beams and planking provide the nature-inspired cabin feel. Kitchen island has been made quite big which makes it a very versatile space for preparation, consumption and even guests. Wolf cabinet are very cleverly custom made so that there will be enough room for everything.
The interior is made luxurious with the help of sleek and durable quartz surfaces, state-of-the-art Whirlpool appliances, and touch of elegance by Kohler new simple beautiful water fixtures in the kitchen and the bathroom. Vinylox flooring is very attractive and practical, plus energy-efficient LED lighting has been installed which is also a very chic and beautiful option. The master bedroom is wonderful and has vaulted ceiling for maximum light and sense of spaciousness, plus the added bonus of direct access to a private balcony and deck through the patio door from the bedroom.

Enjoying leisure and quietness can be the best experience with the Sunrise, and at the same time, you also get an opportunity to meet the day and have your morning coffee on the balcony overlooking the great view from wherever you have located your tiny home. The feature is utterly comfortable and convenient that is also packed with touch of style by the premium bathroom fixtures and ingenious design. In general, the interiors provide for relax in the ever comfortable heating and cooling system and it supports the consistent perfect temperature in the Valley Forge Tiny Home whether it is used as a main home or for seasonal living.
Main Features and Quality of the Valley Forge Tiny Home
Valley Forge Tiny Home apart from setting in line with the master plan is also keeping up with the superior craftsmanship and exquisite features. In a few years, it is expected that the usage of RV parks will become very limited, and if you do not want to waste your money on such spaces then it’s worth considering being the owner of the Valley Forge which means that you will have the right to place this home almost anywhere since it is an RVIA-certified park model (the foundation option is available) which keeps safety and quality at the highest level.

The drywall walls with wood accents create a home-like feel, far removed from typical RV interiors. Using insulated systems also means energy and therefore you will pay fewer utility bills and also will be environmentally conscious. Pella windows maintain excellent insulation and create wonderful views that you can enjoy while the steel roof will offer you protection for a very long time and against all sorts of weather conditions. In the limited space area, there are clever storage options that prevent a situation of clutter, and the design offers features that make it easy to entertain guests around the island during family dinners or game nights in the living room.
Utopian Villas explains that the Valley Forge is a fusion of both style and durability and consequently, the materials are quite sturdy in withstanding the weather elements as well as the wear and tear of time. Not only does this add to the lifestyle and the investment but it will give you great satisfaction in your tiny home.

The Valley Forge Tiny Home: How to Make It Your Own and Its Price
If you want the home customized, you might want to consider the option of an outdoor deck or change some interior elements of the house to better suit your style. The flexibility of this model ensures that each home can be tailored to individual needs, whether it is a couple’s retreat or a family’s vacation base.
The Valley Forge Tiny Home is a really good deal at the starting price of $123, 728 considering the luxurious features and the excellent quality of construction. Financing can be quite easy and relatively inexpensive when you have a good-to-excellent credit score: Through LightStream, you can get a fixed-rate, low-interest, unsecured loan with no fees, not restricted by the loan model, not requiring land ownership, and with a simple online application process that can lead to same day funding if applied early.

You can download a brochure from the Utopian Villas website that contains detailed information such as floor plans and additional specs to make an informed decision. To get a better idea of the space, you can also check out virtual tours and videos that are available online.
Why Opt for the Valley Forge Tiny Home?
Ground is a very valuable commodity today especially when it comes to the city and the Valley Forge Tiny Home has managed to excel when it comes to combining luxury and efficiency in such a small space without giving up on either one. It has been cleverly designed and consists of exquisite amenities where nothing has been left out in the way of creating great memories in the beautiful settings. You will cherish a simpler, harmonious lifestyle with nature and all you need will be available at your door step whether you decide to park the house in a national forest or your own yard.
Article Soruce: utopian-villas.com